Quadrilocale in vendita

Roma, Via Beniamino Segre - Fonte Laurentina
€ 399.000
4 locali 4 locali
108 Mq 108 Mq
2 bagni 2 bagni

Quadrilocale in vendita

Roma, Via Beniamino Segre - Fonte Laurentina

Descrizione annuncio

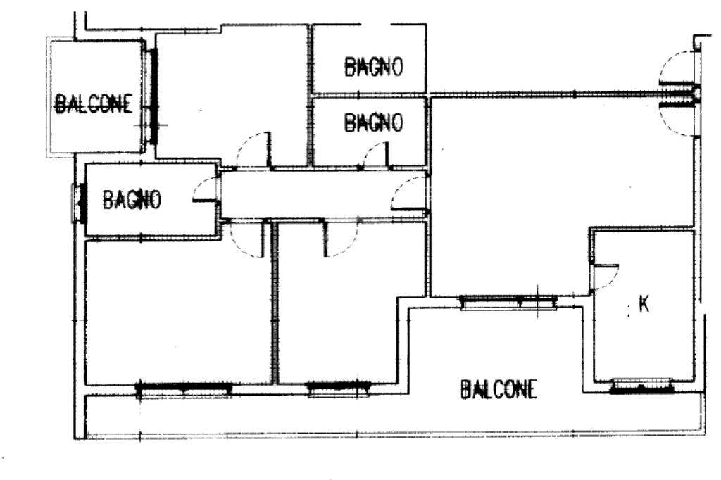
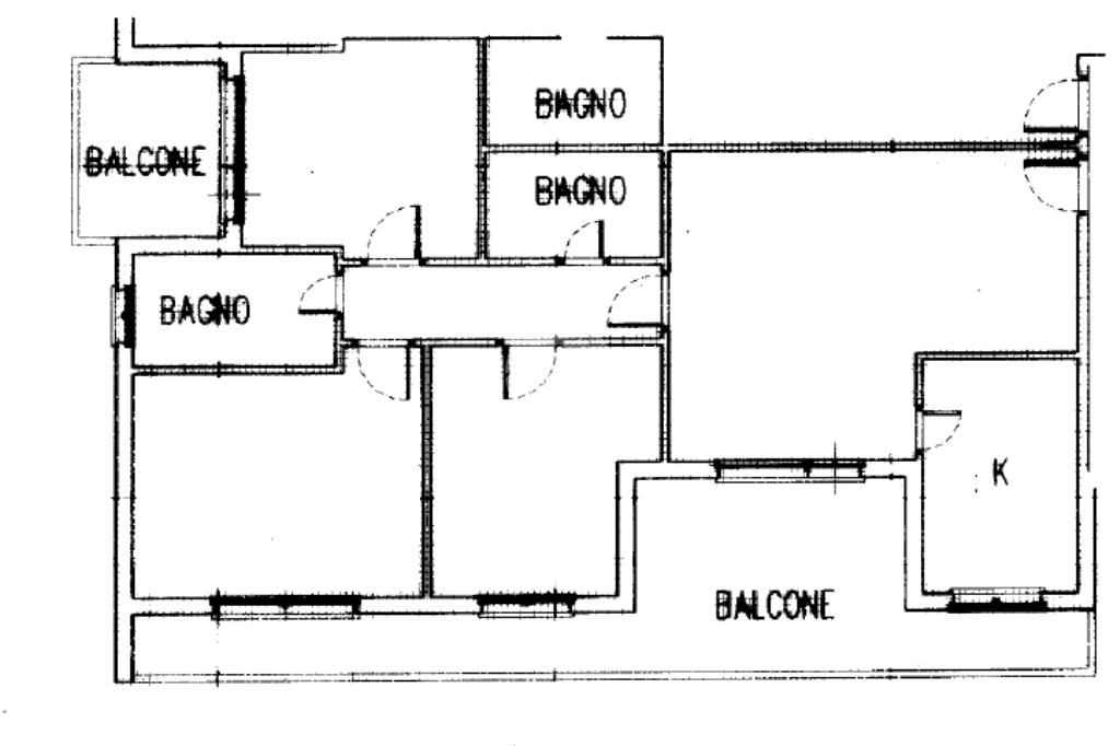
Proponiamo in vendita un ampio quadrilocale di 108 mq, situato in Via Beniamino Segre, parte storica del quartiere Fonte Laurentina, nonchè una delle vie più richieste per la sua vicinanza ai principali servizi della zona. L'immobile internamente si presenta in ottime condizioni ed è strutturato in zona giorno composta da un ampio salone ed una cucina abitabile, entrambi con affaccio su un terrazzo panoramico. Lo spazio esterno è un punto forte della soluzione per la sua ottima esposizione Sud-Ovest che garantisce agli ambienti luce naturale durante tutto l’arco della giornata. La zona notte, ben separata, comprende tre camere da letto: due con affaccio sul terrazzo principale ed una dotata di balcone privato; e due bagni, di cui uno finestrato. Completano la proprietà un box auto, un posto auto scoperto ed una soffitta.

Lo stabile in cui è sito l'immobile è oggetto di interventi di ristrutturazione della facciata, già deliberati in sede condominiale; i relativi costi sono a carico della proprietà venditrice.

Le presenti informazioni e planimetrie sono meramente indicative e non costituiscono elementi contrattuali.

Per info e/o appuntamenti anche via WhatsApp al 351 8852746.

SERVIZI PER IL CLIENTE:

- Valutazione immobiliare scritta gratuita e senza impegno;

-Vendita e/o locazioni di immobili nel quartiere di Fonte Laurentina, Castel di Leva, Divino Amore, Colle Parnaso ed Eur Papillo;

-Pratica e consulenza affrancazione;

-Preparazione e stesura di contratti di locazione;

-Preparazione e stesura di contratti preliminari di compravendita;

-Pubblicità capillare e mirata sui principali siti e rivista Tecnorete;

-Clientela selezionata;

-Assistenza e consulenza in sede da parte di professionisti del settore;

-Consulenza gratuita di mutuo attraverso i nostri partner finanziari.

Mostra tutto

Nelle vicinanze

Trasporto pubblico Trasporto pubblico
De Finetti/Segre
De Finetti/Segre
30 m
Amaldi/Krall
Amaldi/Krall
110 m
Ricariche auto elettriche Ricariche auto elettriche
Roma de Finetti | EnelX
150 m
Roma Laurentina Edoardo Amaldi | ENELX FAST
250 m
Roma Silone | EnelX
2,3 Km
Scuole Scuole
Istituto Comprensivo "Marta Russo" - Sede di Vallerano
1,2 Km
Scuole
1,4 Km
Liceo Scientifico Statale Aristotele (succursale)
2,9 Km
Farmacia Farmacia
Farmacia San Pietro
100 m
Farmacia
1,7 Km
Farmacia Vavalà
2,2 Km
Farmacia Comunale Fonte Ostiense
2,9 Km
Ospedali Ospedali
Policlinico Universitario Campus Bio-Medico
2,9 Km
Pronto Soccorso
2,9 Km
Supermercati Supermercati
Elite
510 m
Panorama
1,0 Km
Coop Via Laurentina
2,0 Km
Iper Carni
2,2 Km
MD Discount
2,5 Km
Negozi Negozi
Negozi
2,4 Km
Rishang
2,4 Km
Rosy's Shop
2,6 Km
Bar Bar
Il tempio del caffè
3,0 Km
Ristoranti Ristoranti
L'Arcobaleno
490 m
Trattoria Laurentina
990 m
NO Pizza Party
1,8 Km
Pizzeria Dolce Grano
2,1 Km
Ristoranti
2,2 Km
Mostra tutto

Caratteristiche

Rif.:
61171254
Piano:
6 di 6 con ascensore (ultimo Piano)
Box:
1
Posti auto:
1
Terrazzi:
2
Camere da letto:
3
Mostra tutto
Prezzo Prezzo
€ 399.000
Rata mutuo Rata mutuo
€ 1.895 / mese
Spese annue Spese annue
€ 1.200
Proponi il tuo prezzoProponi il tuo prezzo

Classe Energetica

G
G
G
G
G
G
G
G
G
EP globale non rinnovabile:
100.00 kW h/m² anno
EP globale rinnovabile:
100.00 kW h/m² anno
EP invernale del fabbricato:
EP estiva del fabbricato:
Anno di costruzione:
1999
Riscaldamento:
Autonomo
Tipo impianto:
A radiatori
Tipo alimentazione:
Metano

Ti interessa visionare l'immobile?

Fissa un appuntamento  Fissa un appuntamento

Richiedi informazioni

Clicca su Leggi per aprire l'informativa
* Questi campi sono obbligatori

Calcola il tuo mutuo

Semplice e senza impegno
Anticipo

( % )
Mutuo

( % )

pochi semplici passi

inserisci i tuoi dati
Questionario completato
Grazie per aver richiesto un appuntamento senza impegno con un nostro Consulente del Credito e Assicurativo.

Hai inserito correttamente tutti i dati necessari e a breve riceverai una e-mail con un link da convalidare per inviare i tuoi dati.
Affiliato
Gdg.niu.la Immobiliare Srl
Via Bruno De Finetti, 207 00134 Roma (RM)

Il nostro staff


  • Gaetano Del Gaudio
    Affiliato

  • Niubel Lahera
    Affiliata

  • Damiana Pacifici
    Collaboratrice

  • Anastasia Turchetti
    Coordinatrice

  • Laura Bevilacqua
    Affiliata
Via Bruno De Finetti, 207 00134 Roma (RM)
Zona: Fonte Laurentina
Mostra su mappa
Orari: Lunedì - Venerdì 9-13 / 15.30-19.30 Sabato 9-13
Affiliato
Gdg.niu.la Immobiliare Srl
Via Bruno De Finetti, 207 00134 Roma (RM)

2026 Tecnocasa Franchising S.p.A. - P. IVA 08365160152 - Via Monte Bianco 60/A 20089 Rozzano (MI). Ogni agenzia ha un proprio titolare ed è autonoma. Privacy policy | Policy utilizzo | Cookie policy