Bilocale in vendita

Roma, Viale Ugo Monaco - Fonte Laurentina
€ 199.000
2 locali 2 locali
45 Mq 45 Mq
1 bagno 1 bagno

Bilocale in vendita

Roma, Viale Ugo Monaco - Fonte Laurentina

Descrizione annuncio

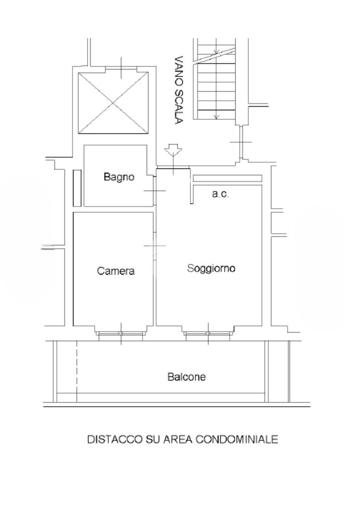
Viale Ugo Monaco - Fonte Laurentina Proponiamo in vendita bilocale completamente ristrutturato, ubicato in un comprensorio di recente costruzione e di ultima generazione. L'immobile internamente si compone di ingresso, soggiorno con angolo cottura, camera da letto matrimoniale, bagno ed un terrazzo servito da armadiature in alluminio in tinta e su misura. La soluzione verrà ceduta completa di mobilio, sono presenti climatizzatori nella zona giorno e nella zona notte, porte scorrevoli, cucina su misura completa di elettrodomestici, infissi doppio vetro taglio termico in pvc e caldaia a condensazione. Il piano alto e l'esposizione a Sud rendono l'appartamento molto luminoso. Lo stabile in cui è ubicata la soluzione è dotato di pannelli solari ed è in classe energetica A3. Completa la proprietà un ampio posto auto coperto in rimessa condominiale. La zona è servita da tutti i principali servizi tra cui: scuole, locali commerciali e linee autobus.

Le presenti informazioni e planimetrie sono meramente indicative e non costituiscono elementi contrattuali.

Per info e/o appuntamenti anche via WhatsApp al 351 8852746.

SERVIZI PER IL CLIENTE:
- Valutazione immobiliare scritta gratuita e senza impegno;
- Vendita e/o locazioni di immobili nel quartiere di Fonte Laurentina, Castel di Leva, Divino Amore, Colle Parnaso ed Eur Papillo;
- Pratica e consulenza affrancazione;
- Preparazione e stesura di contratti di locazione;
- Preparazione e stesura di contratti preliminari di compravendita;
- Pubblicità capillare e mirata sui principali siti e rivista Tecnorete;
- Clientela selezionata;
- Assistenza e consulenza in sede da parte di professionisti del settore;
- Consulenza gratuita di mutuo attraverso i nostri partner finanziari.

Mostra tutto

Nelle vicinanze

Trasporto pubblico Trasporto pubblico
Maggi
Maggi
460 m
De Finetti/Segre
De Finetti/Segre
530 m
Ricariche auto elettriche Ricariche auto elettriche
Roma de Finetti | EnelX
670 m
Roma Laurentina Edoardo Amaldi | ENELX FAST
800 m
Roma Silone | EnelX
2,5 Km
Scuole Scuole
Istituto Comprensivo "Marta Russo" - Sede di Vallerano
1,6 Km
Scuole
1,9 Km
Farmacia Farmacia
Farmacia San Pietro
510 m
Farmacia
2,0 Km
Farmacia Vavalà
2,3 Km
Supermercati Supermercati
Elite
1,1 Km
Panorama
1,3 Km
Coop Via Laurentina
2,1 Km
CONAD
2,2 Km
Iper Carni
2,4 Km
Negozi Negozi
Negozi
1,8 Km
Rishang
1,9 Km
Rosy's Shop
2,7 Km
Ristoranti Ristoranti
L'Arcobaleno
980 m
Trattoria Laurentina
1,4 Km
Ristoranti
1,9 Km
Al postaccio
1,9 Km
NO Pizza Party
2,0 Km
Mostra tutto

Caratteristiche

Rif.:
61195411
Piano:
4 di 7 con ascensore (Piano alto)
Posti auto:
1
Terrazzi:
1
Camere da letto:
1
Arredamento:
Completo
Mostra tutto
Prezzo Prezzo
€ 199.000
Rata mutuo Rata mutuo
€ 945 / mese
Spese annue Spese annue
€ 960
Proponi il tuo prezzoProponi il tuo prezzo

Classe Energetica

A3
A3
A3
A3
A3
A3
A3
A3
A3
EP globale non rinnovabile:
100.00 kW h/m² anno
EP globale rinnovabile:
100.00 kW h/m² anno
EP invernale del fabbricato:
EP estiva del fabbricato:
Anno di costruzione:
2019
Riscaldamento:
Autonomo
Tipo impianto:
A pavimento
Tipo alimentazione:
Gasolio

Ti interessa visionare l'immobile?

Fissa un appuntamento  Fissa un appuntamento

Richiedi informazioni

Clicca su Leggi per aprire l'informativa
* Questi campi sono obbligatori

Calcola il tuo mutuo

Semplice e senza impegno
Anticipo

( % )
Mutuo

( % )

pochi semplici passi

inserisci i tuoi dati
Questionario completato
Grazie per aver richiesto un appuntamento senza impegno con un nostro Consulente del Credito e Assicurativo.

Hai inserito correttamente tutti i dati necessari e a breve riceverai una e-mail con un link da convalidare per inviare i tuoi dati.
Affiliato
Gdg.niu.la Immobiliare Srl
Via Bruno De Finetti, 207 00134 Roma (RM)

Il nostro staff


  • Gaetano Del Gaudio
    Affiliato

  • Niubel Lahera
    Affiliata

  • Damiana Pacifici
    Collaboratrice

  • Anastasia Turchetti
    Coordinatrice

  • Laura Bevilacqua
    Affiliata
Via Bruno De Finetti, 207 00134 Roma (RM)
Zona: Fonte Laurentina
Mostra su mappa
Orari: Lunedì - Venerdì 9-13 / 15.30-19.30 Sabato 9-13
Affiliato
Gdg.niu.la Immobiliare Srl
Via Bruno De Finetti, 207 00134 Roma (RM)

2026 Tecnocasa Franchising S.p.A. - P. IVA 08365160152 - Via Monte Bianco 60/A 20089 Rozzano (MI). Ogni agenzia ha un proprio titolare ed è autonoma. Privacy policy | Policy utilizzo | Cookie policy